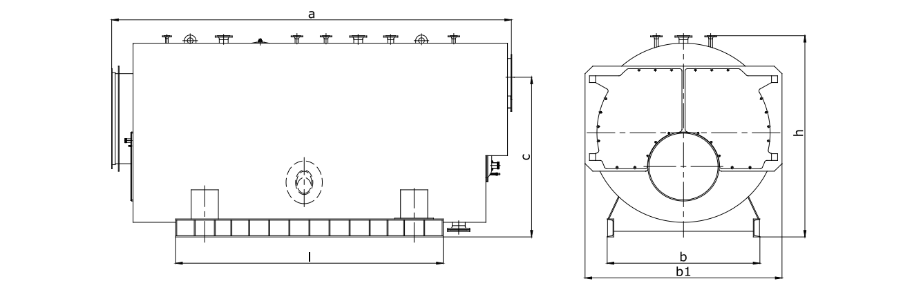
Котел с перегревателем работающий на жидком топливе и газе серии SHW

Серия SHW - трехходовой паровой котел с перегревателем, работающий на жидком топливе и газе

Основные технические преимущества

  • мощность выработки перегретой воды 700-23200 кВт
  • рабочее давление 6-16 бар
  • сжигание жидкого и газообразного топлива
  • может использоваться с напорной струйной горелкой
  • подходит для пиков энергопотребления
  • подходит для систем центрального отопления большой мощности
  • конструкция с мокрой задней стенкой обеспечивает максимальную отдачу от поверхности теплопередачи
  • низкая загрузка печи для обеспечения завершения горения в топке(< 1.3 МВт/м3)
  • полное сгорание и низкий уровень выбросов NOx благодаря тепловой конструкции
  • благодаря изоляционному материалу высокой плотности, используемому для покрытия корпуса котла, снижаются потери на излучение и в режиме ожидания
  • эффективность до 95% при использовании экономайзера

Модельный ряд и технические характеристики
SHW

ERENSAN SHW 0805 - SHW 4540

ERENSAN SHW 5045 - SHW T 232195

Более подробную информацию и консультацию вы можете получить у наших специалистов